福建省福州市仓山区建新镇金洲北路7号左海·江湾道公馆
金山楼市竞争白热化,这三个明星楼盘究竟该如何选?
在福州金山板块的新盘市场中,左海·江湾道公馆、建总·瑞璟和地铁·栖江元璟三个项目备受关注。它们虽同在金山北部片区,但产品定位、户型设计和社区配套各有特色,满足不同购房者的需求。
1. 基本定位与目标客群
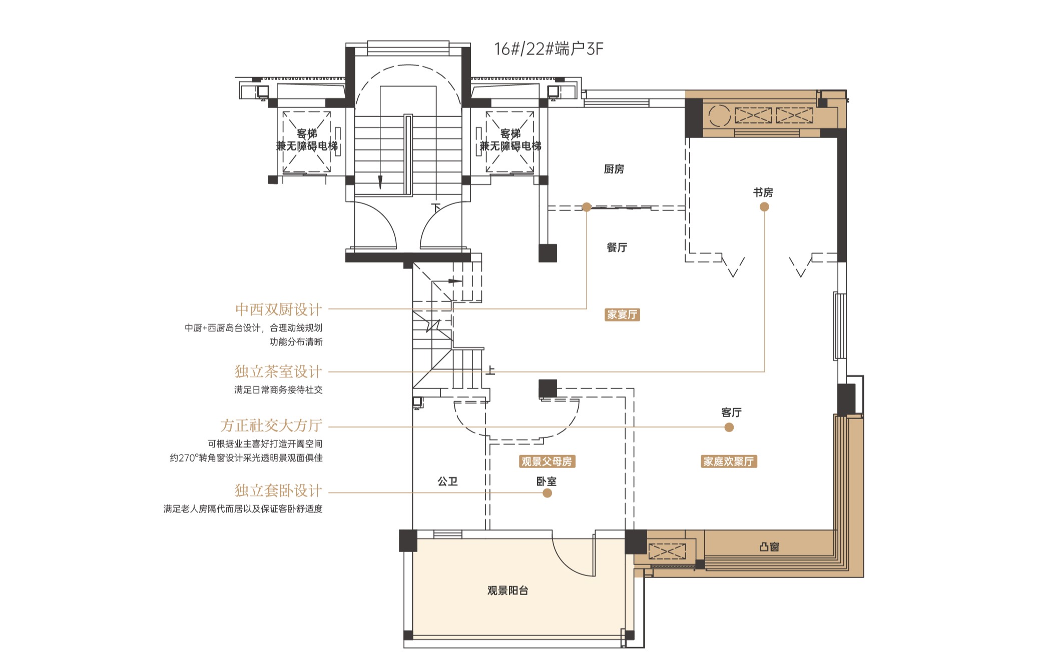
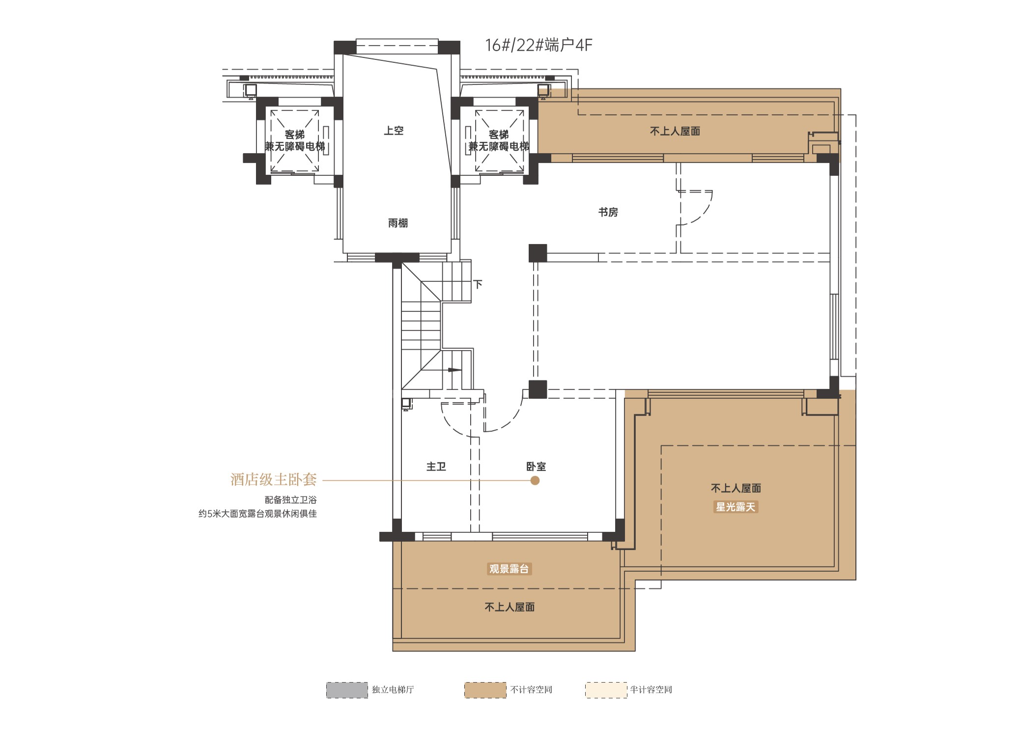
左海·江湾道公馆由千亿国企左海控股集团开发,占地约26.54亩,规划6栋17-33层高层住宅,总计356套商品房,全部采用2梯2户的纯板楼设计,主打107-136㎡户型,定位“友好轻豪宅”。
该项目针对的是地缘性改善客户,即那些原本就住在金山片区,希望提升居住品质的家庭。
建总·瑞璟主力面积段下探至102㎡,门槛相对较低,更适合预算有限的刚需或刚改客户。
而地铁·栖江元璟作为金山北唯一的低密洋房加叠墅项目,瞄准的是追求低密生活品质的改善客户,特别是那些有别墅梦但预算在600万左右的群体。
2. 户型设计对比分析
江湾道公馆以高得房率和功能性户型为核心卖点,部分户型通过巧妙设计实现最高得房率约97%。
约118㎡户型:多见于小高层,力求实现四开间朝南,采用LDK一体化厅堂设计增强空间通透感。
约136㎡户型:多见于大高层,南向大面宽设计,部分户型配备宽景阳台。
建总·瑞璟作为连廊产品,面积段更为紧凑,为预算有限的客户提供了更低的上车门槛。
栖江元璟则提供两类产品:洋房(125-149㎡)和叠墅(161-178㎡)。其洋房产品一梯两户,电梯采取双开门设计,在保障隐私的同时避免空间浪费。叠墅产品中,上叠有南北不计容露台,下叠有包围式花园,但室内赠送面积相对有限。
3. 社区配套与生活环境
江湾道公馆规划有下沉式会所和五大主题全龄架空层,注重社区内部生活场景营造。项目采用海派建筑风格,外立面以香槟金铝板和LOW-E玻璃打造,凸显现代感。
栖江元璟作为低密度社区,其公共活动空间可能因“高低配”(洋房+叠墅)规划而相对受限。项目占地面积50亩,规划20栋住宅,其中10栋为8-9层洋房,10栋为4层叠墅,总计仅254套,居住密度低。
建总·瑞璟的社区配套则以满足基本生活需求为主,更注重实用性与性价比。
4. 交通与周边配套评估
交通方面,江湾道公馆距离地铁5号线“马榕站”约200-350米,属于标准地铁盘;周边还有2号线、4号线及规划中的6号线,形成“四轨交汇”格局。
栖江元璟距离地铁5号线阵坂站约200米,距4、5号线换乘站洪塘站约550米,项目宣称TOD模式,有三线加持。
建总·瑞璟同样位于大众认知中比较成熟的核心地段,交通便利,生活配套成熟。
商业配套上,江湾道公馆周边汇聚了万达广场、爱琴海购物公园、万象城等大型综合体,日常采买距离永辉超市约400米,大润发约800米,生活便利度高。栖江元璟周边人流相对较少,生活气息稍弱,但靠近闽江公园。
5. 学区与生态环境
教育学区是江湾道公馆的明显短板——虽然划片金山实验小学教学品质广受赞誉,但对口中学二十九中的教学质量在市场上评价普遍不高。
栖江元璟在规划学校建成前,过渡至淮安实验小学或洪塘中心小学,未来中学预期可能优于二十九中。
生态环境方面,江湾道公馆距离闽江公园约700-800米,高层部分房源可能拥有一定江景视野。栖江元璟靠近闽江公园,但沿江都是住宅,基本无江景。
6. 价格与价值分析
据市场分析,江湾道公馆合理价格约在2.4万/㎡(毛坯)左右,但开发商可能报价更高(2.6万/㎡以上),主力户型总价门槛预计在280-300万以上。
栖江元璟洋房价格可能在2.5万/㎡以上,125㎡起步户型总价约300万以上;叠拼部分总价预计在600万上下。
建总·瑞璟凭借较小的面积段和较低的单价,总价门槛相对较低,更适合预算有限的购房者。
选购指南:如何根据需求做选择
对于看重纯粹居住舒适度和私密性的金山地缘改善客户,左海·江湾道公馆的纯板楼设计、2梯2户和社区内部配套很有吸引力。但需要接受其学区方面的短板和周边的城市界面。
如果预算相对有限,或是首次置业,对地铁依赖度高,希望生活在配套成熟、烟火气浓的区域,建总·瑞璟的性价比和地段便利性可能更适合。
若追求低容积率带来的安静和尺度感,向往洋房或叠墅产品,并且对现有学区要求不高但抱有更好预期,地铁·栖江元璟独特的产品定位值得重点关注。
决策关键点:这三个楼盘的选择本质上是在权衡“舒适度”、“性价比”和“产品独特性”三者之间的优先级。建议购房者结合自身财务状况、家庭结构演变和长期生活规划,进行综合考量后再做决策。
感兴趣的朋友可拨打售楼部电话细致了解,往常拨打电话预定看房还能享用有房子专属优惠,一站式买房温馨体验!
更多买房优惠/资讯关注有房子房产网,持续更新中!
【售楼部电话:4007729886 转 3458 来电,或点击报名立享专属优惠,并享用一对一效劳,可提供专车看房】


