福建省福州市台江区瀛洲街道光明港苑巨成·恒荣光明里
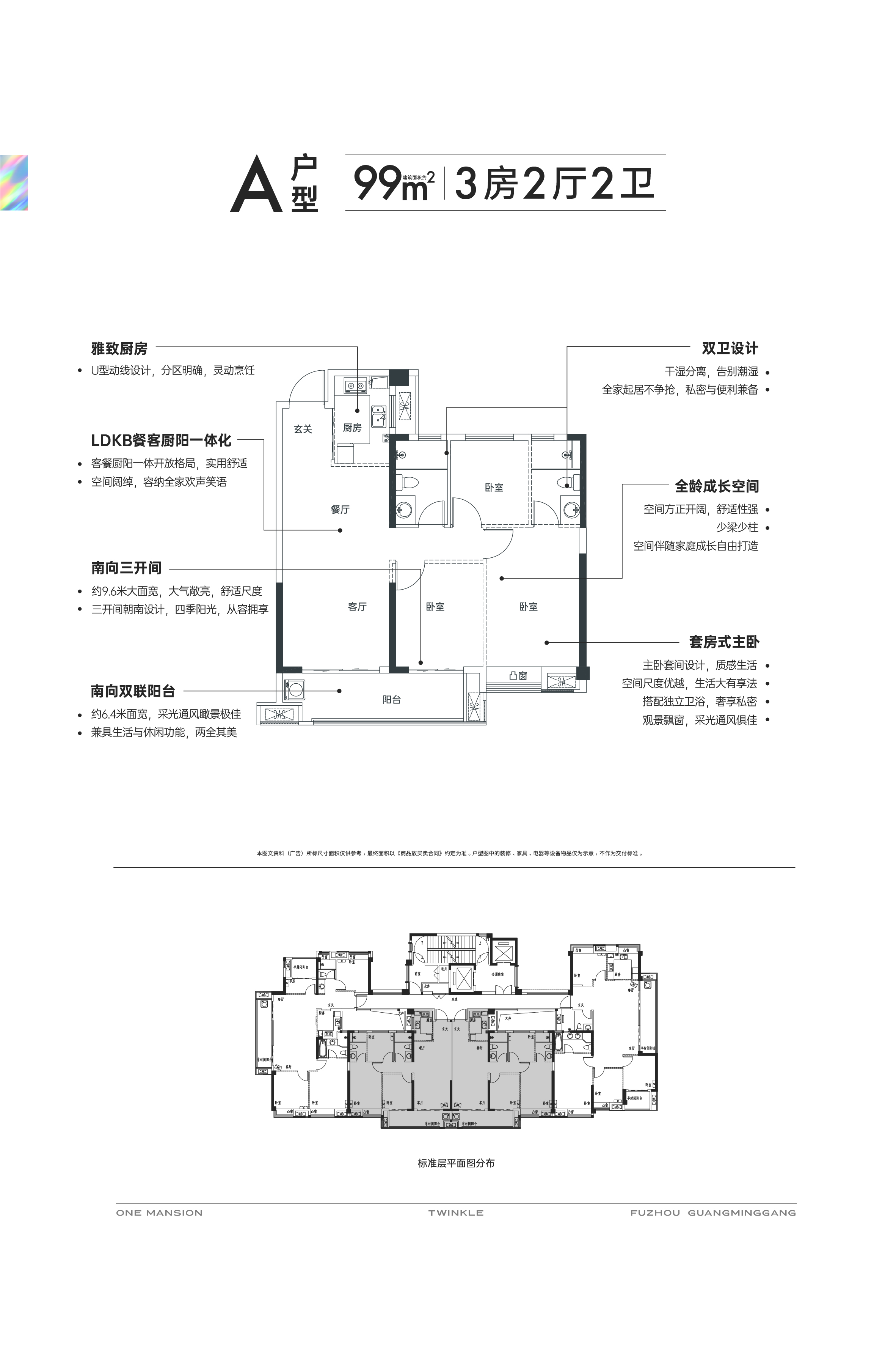
巨荣光明里项目在福州市台江区排尾片区取得了重大进展,这个占地5777㎡的住宅项目吸引了恒荣集团和巨成集团的共同投资。该项目不仅具有约14442㎡的总建筑面积,而且只规划有一栋住宅楼、商业设施以及地下车库。据悉,该项目旨在打造高品质生活的人居之所。高层住宅产品的户型建筑面积为89-142㎡的三房至四房,并设有销售指导价为3.4万/㎡的严格限制。 在过去,恒荣集团以底价2.71亿元成功竞得了位于台江区长乐路东侧、排尾路北侧的宗地2021-67号旧改地块三,成交楼面价约18764元/㎡。随后,巨成集团入股恒荣,共同开发该地块,双方股权各占50%。这一地块的位置十分优越,位于台江区长乐路东侧、排尾路北侧,周边环境优美,交通便利,距离地铁排尾站仅50米范围(远期规划中),周围有光明港公园等休闲场所,且毗邻鳌峰广场及台江海峡金融商务区,商务办公、生活、休闲娱乐等全方位配套齐全。
而现在,这个项目已经引起了广泛关注。它不仅是一个新的住宅项目,更是一个代表了城市发展新方向和品质生活的象征。该项目已经明确了高品质和高标准的定位,并在市场上形成了积极的反响。这种对未来的展望和期待无疑会吸引更多的投资者和购房者前来关注。
随着项目的深入开发,未来该地区的房价也备受期待。但需要注意的是,目前该地区周边新房的价格尚不明确,所以无法对此项目未来的房价做出准确的预测。然而,考虑到该项目的地理位置、规划和配套设施,预计其房价将会在市场上占据一定优势。
总的来说,巨荣光明里项目是一个值得期待的住宅项目,它不仅具有优越的位置、规划和配套设施,而且明确的市场定位和未来的发展方向也使其具有很大的潜力。在未来,我们将密切关注该项目的进展,并期待它为城市的发展和品质生活带来更多的可能性。
感兴趣的朋友可拨打售楼部电话详细了解,现在拨打电话预约看房还能享受有房子专属优惠,一站式买房舒适体验!
更多买房优惠/资讯关注有房子房产网,持续更新中!


