福建省福州市仓山区盖山镇则徐大道243号
#左海·望悦 124㎡王炸户型
限时秒杀一口价322万‼️
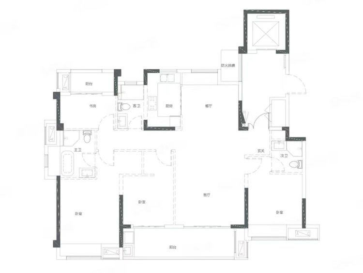
环景楼王1梯1户 实景呈现
超高得房94% 6㎡独立电梯厅
左海·望悦:福州二环内核心圈的新地标
福州,这座历史悠久的城市,在不断地发展与变迁中,始终秉持着对品质生活的追求。而今,左海集团携手福州工业园区开发集团,以百亿市属国企的实力,为福州市民带来了一座集交通、居住、商业于一体的国际都会多元住区——左海·望悦。
项目位于福州二环内核心圈,占据了得天独厚的地理位置。紧邻则徐大道和白湖亭地铁口,步行仅需约300米即可到达地铁1号线白湖亭C站口,无缝衔接鼓楼、台江、仓山各区,让出行变得轻松便捷。此外,项目周边还汇聚了白湖亭万达广场、中骏世界城、SM广场(在建)等超百万方商圈,以及福建商业广场、海通广场、麦德龙等商业配套,构建了百万级商圈,满足了居民的日常购物需求。
左海·望悦不仅交通便利,商业配套完善,更重视居住环境的打造。项目总占地约129亩,分为A、B两大地块,内赏滨河景观,外揽万千繁华。A区地块规划有文保街区,人文与时尚共生;B区地块为纯商品房住区,规划大中庭景观,营造都市秘境。特邀国内一线景观设计团队——山水比德,以“繁华中的自然森林”为主题,匠心打造集古厝建筑与传统人文于一体的文保街区与大中庭景观的纯商品房品质住区。
项目提供的户型丰富多样,建面约89-148㎡的三至四房,部分带装修、部分毛坯,满足了不同家庭的需求。无论是新婚夫妇、三口之家,还是多代同堂的大家庭,都能在这里找到适合自己的温馨家园。
左海·望悦还紧邻福州市文教区,周边规划有幼儿园、中小学,一公里内有高湖小学、仓山实验小学(郭宅分校)等优质教育资源,为孩子们的成长提供了良好的环境。同时,项目周边还拥有四大生态公园,如福州林则徐广场、烟台山风景区等,为居民提供了休闲放松的好去处。
在医疗方面,项目周边有三甲医院如市二人民医院、福建医科大附一医院(奥体院区)等,为家人的健康保驾护航。
左海·望悦以其独特的地理位置、便捷的交通、完善的商业配套、优美的居住环境以及优质的教育资源,成为了福州市民心中的理想住所。无论是追求品质生活的都市白领,还是希望为家人创造更好生活环境的家庭,都能在这里找到属于自己的幸福家园。
更多买房优惠/资讯关注有房子房产网,持续更新中!
【售楼部电话:4008592686 转 2323来电,或点击报名立享专属优惠,并享受一对一服务,可提供专车看房】


